menu
  • News
  • Work Work
    • All
    • Built
    • Conceptual
  • Studio Studio
    • Profile
    • Team
    • Awards
    • Publications
  • Contact
  • EU project
  • All
  • Built
  • Conceptual
  • hr
  • en

gallery

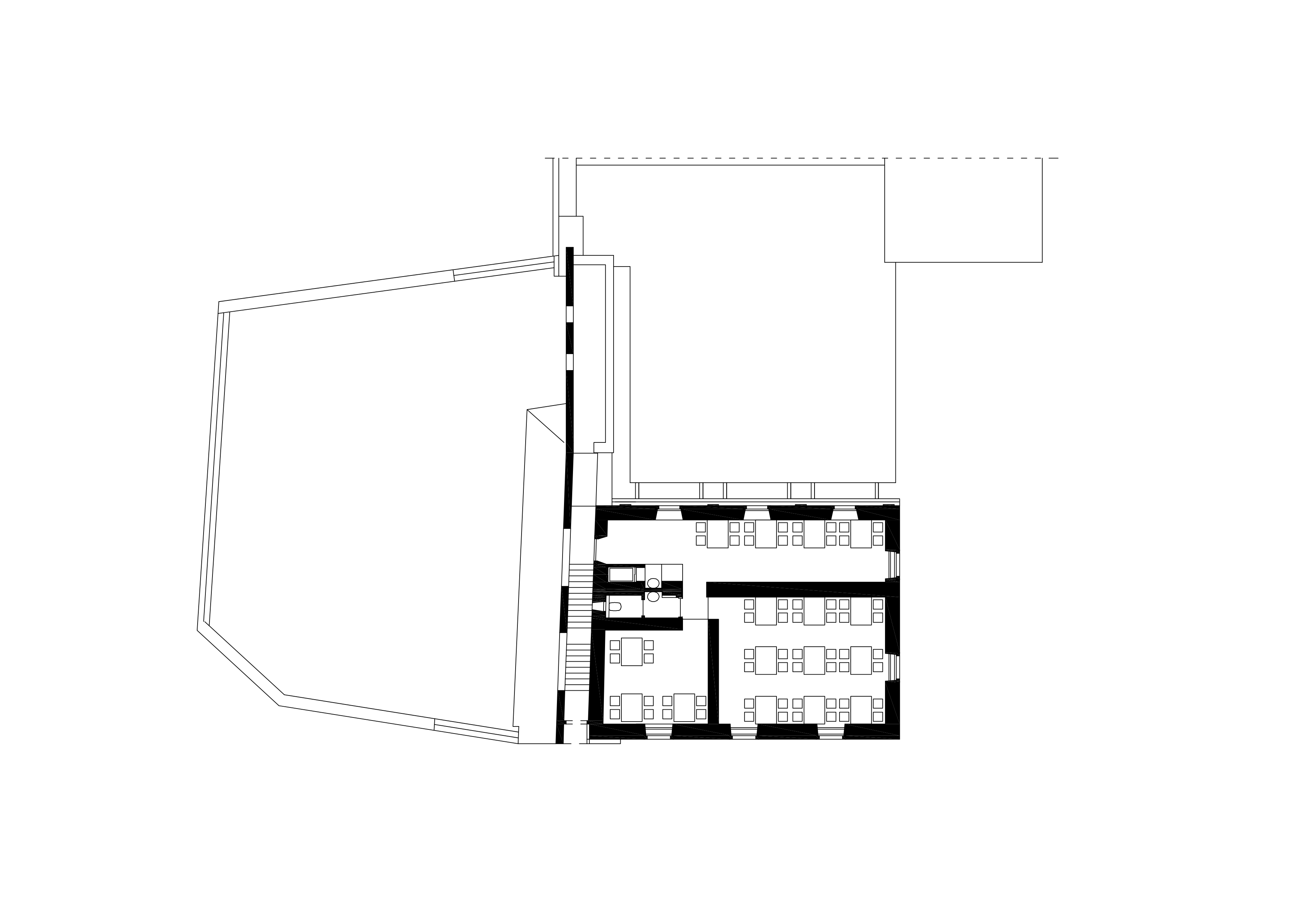
Restaurant F

  • about
  • gallery
  • back
© Dva arhitekta Izrada web stranica

This site uses cookies to provide a better user experience, functionality and display advertising system. Cookie settings can be controlled and configured in your web browser, and more about how you can read more here . To continue browsing, click on i agree .